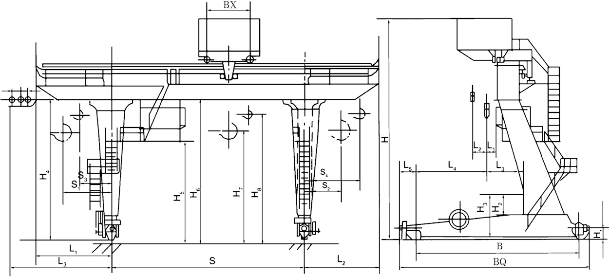
L型单主梁吊钩门式起重机适用于露天货场、铁路沿线进行一般的装卸员装及起重搬运工作。与MG双主梁门式起重机相比,其在调运较长物品过跨时,不受空间限制,具有结构上的优势。另外L型门机因结构特点,在起升高度一定的情况下,整机的高度有所降低,节约了成本。
L型5~32/5吨单主梁吊钩门式起重机 L Type 5~32/5t Single Main Beam Hook Gantry Crane
Related Products
江苏常州门式起重机为什么在造船厂里是不可或缺的
江苏南京门式起重机的选型要重点考虑哪些核心参数
四川雅安QZ型抓斗起重机在建材行业原料搬运中有何表现
四川眉山QZ型抓斗起重机如何解决污泥处理厂的吊装难题
山西太原双梁桥式行吊的变频控制系统优势在哪